Beschreibung
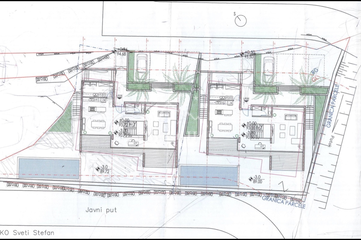
Willkommen bei der exklusiven Immobilienmöglichkeit in Przno! Dieses weitläufige Grundstück von 1200 m² befindet sich nur 600 Meter vom glitzernden Meer entfernt. Umgeben von luxuriösen Villen bietet diese renommierte Gegend eine ruhige Umgebung mit atemberaubendem Meerblick. Mit bequemem Zugang zu einer Zufahrtsstraße, Wasserversorgung und Strom ist dieses Grundstück ideal zur Entwicklung geeignet. Die flexiblen Bauvorschriften ermöglichen den Bau von zwei Villen mit jeweils 450 m² oder ein großes Gebäude mit 900 m². Ob Sie einen touristischen Hotspot oder Ihren eigenen Rückzugsort schaffen möchten, diese Lage bietet endlose Möglichkeiten. Die technischen Spezifikationen und das Konzept des Bausprojekts stehen bereit, um Ihre Vision Wirklichkeit werden zu lassen. Verpassen Sie nicht die Gelegenheit, in ein Stück Paradies zu investieren. Kontaktieren Sie uns noch heute, um diese Traumimmobilie in Przno zu sichern, bevor es zu spät ist!












