Описание
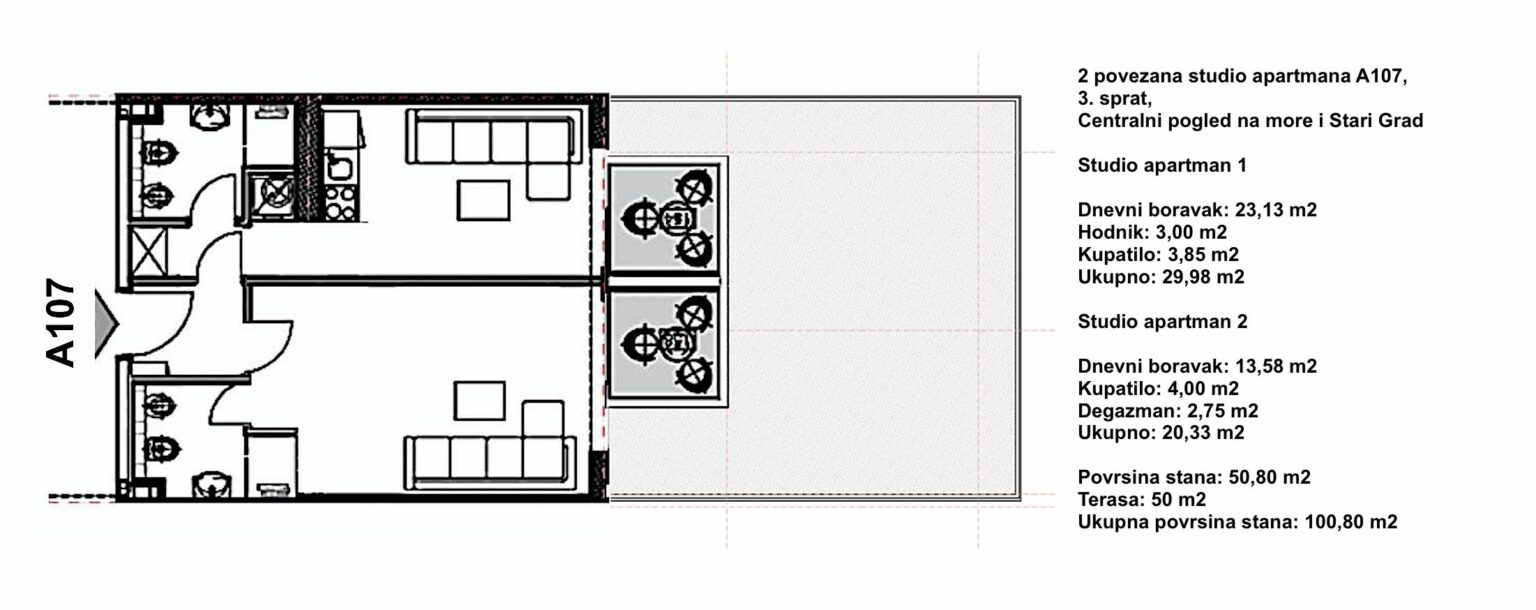
Не упустите уникальную возможность инвестировать в двойные студии с террасами в самом сердце Будвы! Эти роскошные студии, расположенные в престижном комплексе, предлагают уникальные возможности для инвестиций с высокой доходностью. Возможность аренды до конца года. 100 м2 на 3-м этаже - это настоящий жемчужина на рынке недвижимости.
Характеристики недвижимости
Свойства объекта
Площадь, м2: 100 m2
Этаж: 3
Спальни: 2
Ванные комнаты: 2
Вид на море: Да
Лифт: Да
Свойства здания
Терраса: Да
Есть Электричество: Да
Участок
Есть Вода: Да










