Описание
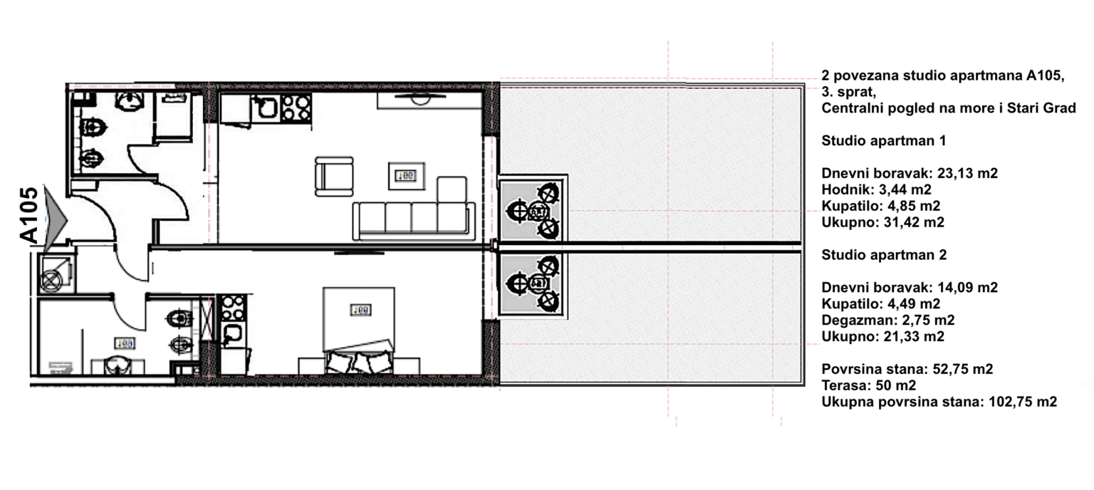
Откройте для себя воплощение роскошной жизни с этим потрясающим предложением недвижимости в самом центре города с центральным видом на море и живописный Старый Город. Это изысканное имущество включает в себя две соединенные студии на 3-м этаже общей площадью 102,75 м2, включая просторный балкон площадью 50 м2, идеальный для наслаждения захватывающими видами.
Каждая студия продуманно спроектирована для комфортного и элегантного проживания, оснащенная современными удобствами и высококачественными отделками. Первая студия включает в себя просторную гостиную, ванную комнату и коридор, в то время как вторая студия состоит из уютной гостиной, ванной комнаты и прачечной. С высотой потолка 3,4 м комнаты украшены натяжными потолками, стильным освещением, паркетом из дуба и роскошными обоями.
Ванные комнаты оснащены высококачественной сантехникой от Villeroy & Boch, отделкой из мрамора и гранита Travertini, мозаичной плиткой из венецианского стекла Valentino, а также системой теплых полов для дополнительного комфорта. Фасад здания украшен утонченным дизайном с бежевым гранитом из Travertini и трехкамерными стеклопакетами для энергоэффективности.
Главным преимуществом этого имущества является обширный балкон, который можно разделить на два отдельных балкона, каждый из которых вмещает бассейн с джакузи размером 2х2 м для ультимативного релакса. Не упустите возможность стать обладателем кусочка рая в это уникальном месте. Свяжитесь с нами сейчас, чтобы запланировать просмотр и превратить это мечтательное имущество в вашу реальность.










