Описание
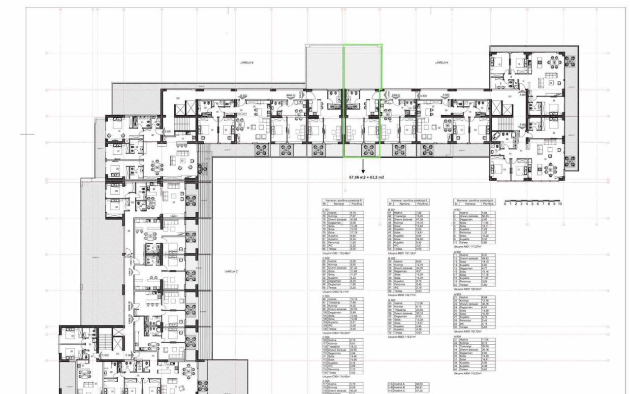
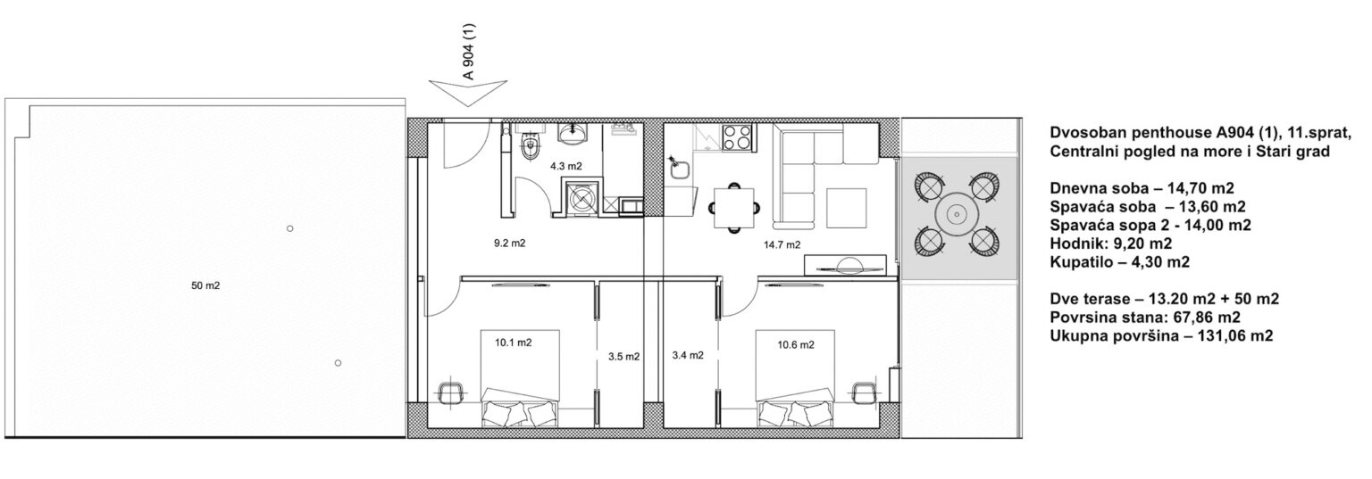
Роскошная жизнь ждет вас в этой потрясающей 2-комнатной квартире на 11 этаже, с захватывающими видами на море и исторический Старый Город. С общей площадью 131,06 м2, эта просторная квартира имеет гостиную, две спальни, ванную комнату и не один, а два балкона - один идеально подходит для наслаждения панорамными видами на море, а другой предлагает возможность установки джакузи для максимального расслабления. Квартира отличается высококачественной отделкой: натяжные потолки, элегантное освещение, роскошные обои, напольное отопление и паркет из дуба. Ванная комната оборудована сантехникой от Villeroy&Boch, отделкой из мрамора и гранита от Travertini, мозаичной плиткой от Valentino и даже полным обогревом для комфорта. Снаружи здание блеснет фасадом из бежевого гранита от Travertini и трехкамерными стеклопакетами. Это жизнь на набережной во всей ее красе, где каждая деталь тщательно продумана для создания поистине исключительного жизненного опыта. Не упустите возможность сделать эту мечтательную квартиру своей - свяжитесь с нами уже сегодня, чтобы организовать просмотр. Проживите жизнь, которую заслуживаете, в этом невероятном прибрежном оазисе.











