Описание
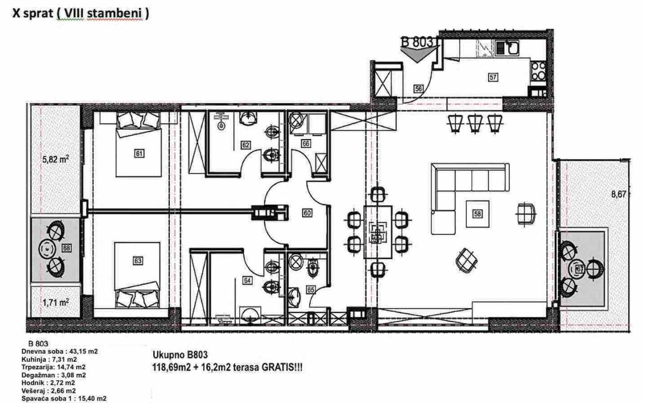
Новый уровень комфорта и роскоши ждет вас в этой удивительной квартире на 10 этаже с захватывающим видом на море, старый город и улицу Медитеранская. Это просторное помещение в настоящее время имеет 4 объединенные студии, но легко может быть разделено на отдельные блоки по желанию. Квартира имеет просторную гостиную, столовую, две спальни, две ванные комнаты, гардеробную и две террасы, чтобы наслаждаться захватывающими видами. Современная планировка позволяет создать гармоничный поток между жилыми помещениями, обеспечивая идеальную обстановку для отдыха и развлечений. С общей площадью 134,89 м2 и жилой площадью 118,69 м2, эта квартира предлагает много места для самовыражения. Высокие потолки добавляют в пространство грандиозности, а высококачественные отделочные материалы, такие как паркетное полы из дуба, мраморные ванные комнаты и фурнитура Villeroy&Boch, придают общей атмосфере изысканность. Независимо от того, решите ли вы оставить ее как одну большую квартиру или разделить на отдельные студии, эта недвижимость предлагает безграничные возможности для индивидуализации. Не упустите возможность стать обладателем роскоши в этом привилегированном месте. Свяжитесь с нами, чтобы договориться о просмотре и сделать эту изысканную квартиру своим новым домом.










