Описание
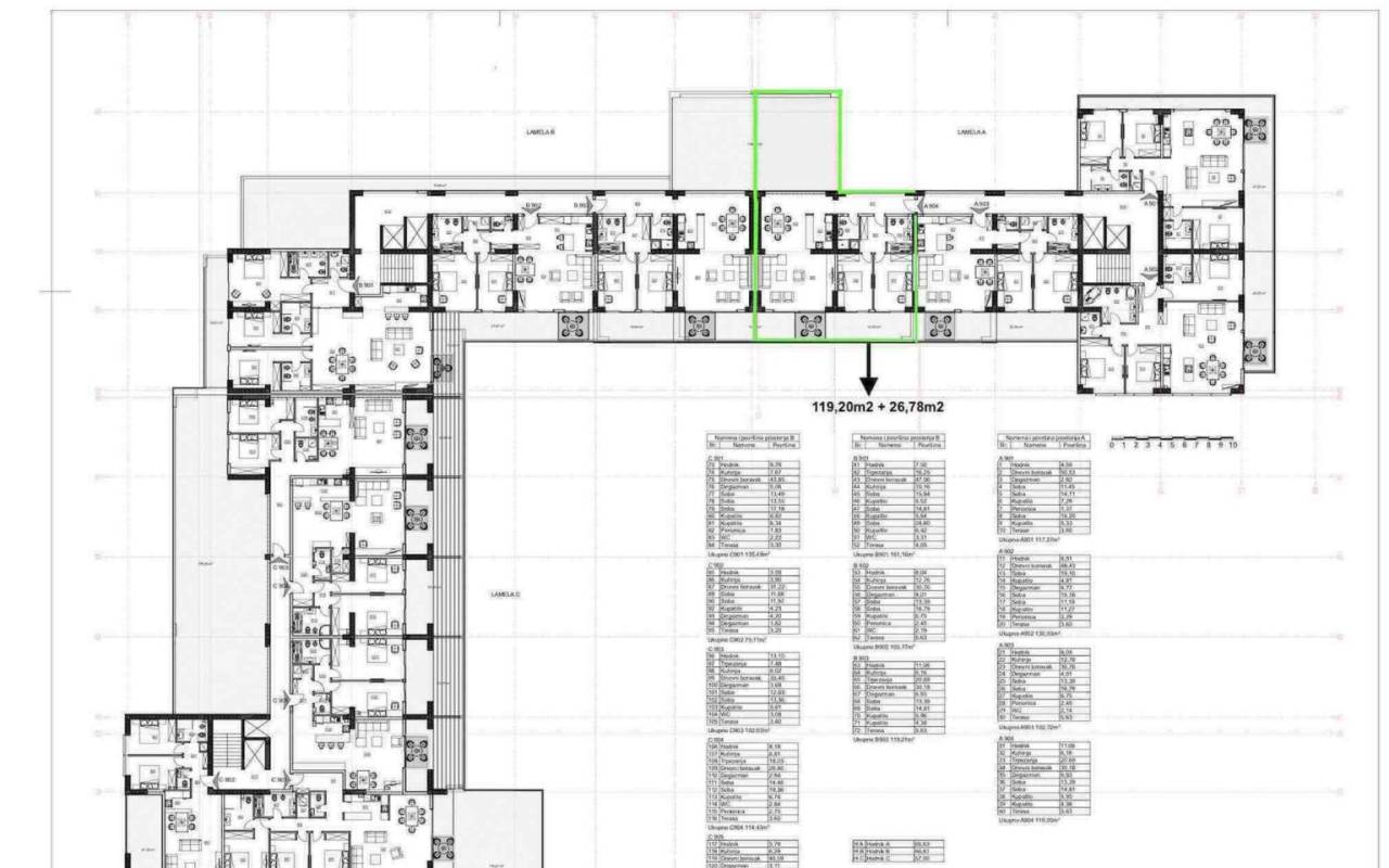
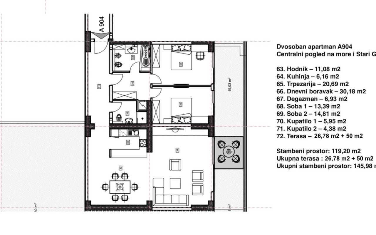
Элитный пентхауз с захватывающим видом на море и старый город! Этот великолепный пентхауз на 11 этаже может похвастаться просторной жилой площадью 102.02 м2 с дополнительной террасой 106 м2, общей площадью 208.02 м2. Пентхауз включает в себя большую гостиную, обеденную зону, две спальни, одну ванную комнату, отдельный гостевой туалет, гардеробную и подсобное помещение. Выходите на террасу и наслаждайтесь захватывающим видом на море и старый город, а может быть, представьте, как расслабляетесь в вашем собственном джакузи на просторной второй террасе. Наслаждайтесь премиальной отделкой в пентхаузе, включая натяжные потолки, изысканное освещение, обои, напольное отопление и паркет из дуба 1-го класса. В ванной комнате установлены роскошные фурнитуры от Villeroy&Boch, мраморные столешницы, отделка из гранита от компании Travertini и мозаичные плитки из венецианского стекла от компании Valentino. Ощутите максимальный комфорт и стиль с фасадом из гранита Travertini и трехкамерными стеклопакетами. Не упустите возможность арендовать этот потрясающий пентхауз к концу года и превратить его в свой дом мечты. Свяжитесь с нами прямо сейчас, чтобы назначить просмотр и сделать эту эксклюзивную недвижимость вашей сегодня!










