Описание
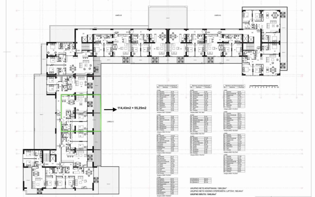
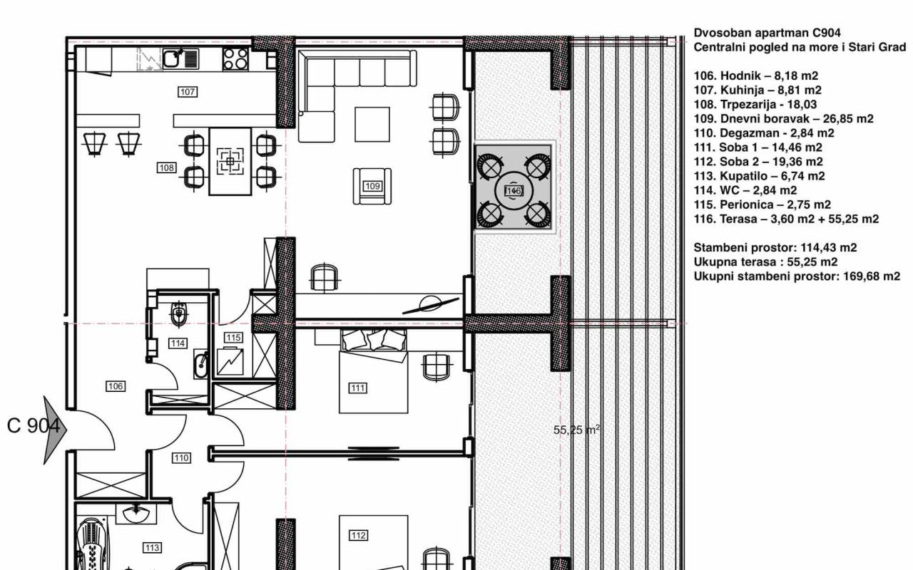
Предлагаем вашему вниманию роскошную квартиру на 11-м этаже с захватывающими видами на море и очаровательный Старый Город. Просторная площадь жилья составляет 114,43 кв.м плюс терраса 55,75 кв.м, общей площадью 169,68 кв.м. Этот пентхаус включает в себя все необходимое для комфортного проживания и роскошного отдыха. Свяжитесь с нами прямо сейчас, чтобы узнать больше и сделать этот исключительный пентхаус своим новым домом на берегу моря.
Характеристики недвижимости
Свойства объекта
Площадь, м2: 169 m2
Этаж: 11
Спальни: 2
Ванные комнаты: 2
Вид на море: Да
Лифт: Да
Свойства здания
Вид на горы: Да
Терраса: Да
Есть Электричество: Да
Участок
Есть Вода: Да











