Описание
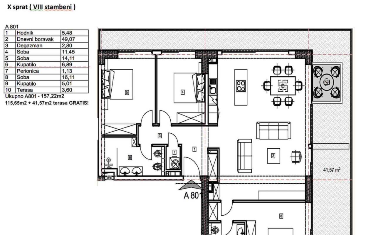
Эксклюзивный 3-спальный пентхаус, расположенный на 10-м этаже, с жилой площадью 116.05 м2 и потрясающей террасой 41.57 м2 с захватывающим видом на море, город и Старый Город. Шикарная квартира с просторной гостиной, обеденной зоной, тремя спальнями, двумя ванными комнатами, гардеробом, кладовой и большой террасой для приемов на свежем воздухе. Современный дизайн с высококачественными отделками и уютным декором. Ванные комнаты облицованы мрамором, кафелем из стекла и оборудованы полотенцесушителями. Обращайтесь прямо сейчас, чтобы стать обладателем этого потрясающего пентхауса!
Характеристики недвижимости
Свойства объекта
Площадь, м2: 157 m2
Этаж: 10
Спальни: 3
Ванные комнаты: 2
Вид на море: Да
Лифт: Да
Свойства здания
Вид на горы: Да
Терраса: Да
Есть Электричество: Да
Участок
Есть Вода: Да










