Описание
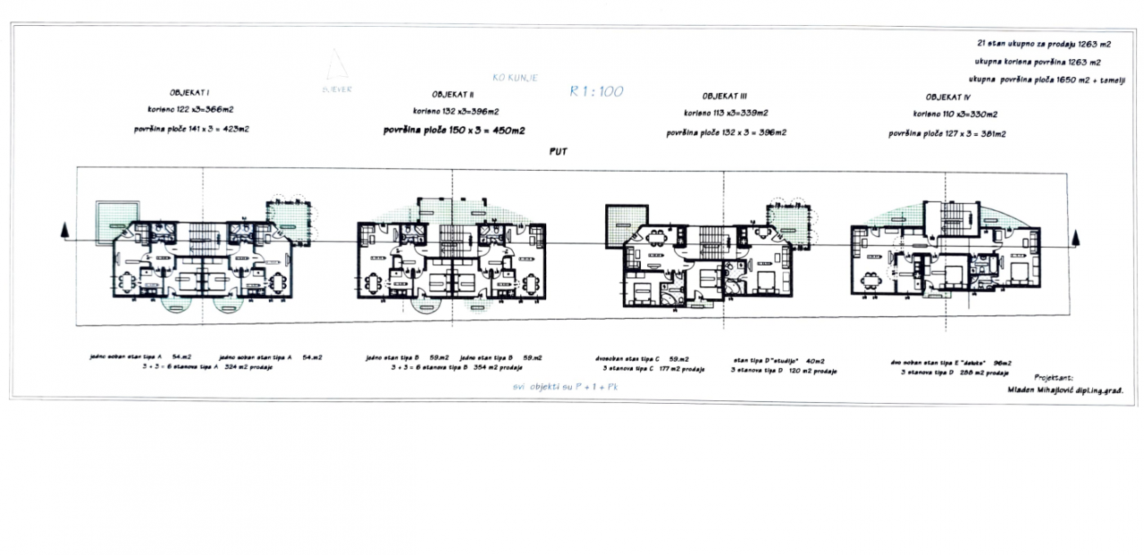
Не упустите удивительную возможность стать владельцем участка земли в великолепной Соломености Холодного Утеса Општина Бар, всего в 100 метрах от моря. С плоской дорогой, ведущей прямо к участку, этот урбанизированный участок идеален для постройки вашего мечтаемого объекта. Земельный участок с разрешением на строительство 3-х этажного здания (Р+1), с коэффициентом застройки 0,8. Представьте себе возможности - вы можете построить собственную роскошную виллу у моря, очаровательный гостевой дом или даже прибыльный апарт-комплекс. Вдохновитесь примерным проектом, включающим 4 трехэтажных здания с общей площадью 21 апартамента и 1 263 квадратных метров жилой площади. С этим участком потенциал для роста и развития безграничен. Независимо от того, ищете ли вы личное убежище у моря или выгодную инвестиционную возможность, этот земельный участок предлагает бесконечные возможности. Не откладывайте в долгий ящик - воспользуйтесь шансом превратить свои мечты о недвижимости в реальность. Свяжитесь с нами сейчас, чтобы узнать больше и сделать предложение, пока не поздно.






